Appartement
€ 175.000

Victor Govaerslaan 6 B5, 2170 Merksem
    • delen

Omschrijving Ref.: 7256870

Instapklaar gerenoveerd appartement met 2 slaapkamers


Op de vijfde verdieping van een goed onderhouden gebouw vindt u dit instapklare en recent gerenoveerde appartement. Dankzij de hoge ligging geniet u van veel lichtinval en een open zicht, wat zorgt voor een ruimtelijk gevoel. Bij het betreden van het appartement komt u in de inkomhal met handige berging en een apart gastentoilet. De ruime leefruimte met grote ramen biedt een aangenaam zicht en sluit aan op de keuken. De badkamer is uitgerust met een douche, wastafel en voorziening voor een wasmachine en droogkast. Achteraan bevinden zich twee volwaardige slaapkamers, beide met rolluiken, die uitgeven op een terras. Extra troef: op het gelijkvloers beschikt u over een private, ruime berging. De verwarming en het waterverbruik zijn gemeenschappelijk, maar worden geregistreerd via aparte tellers. Momenteel is het appartement verhuurd aan €785/maand + €145/maand voor gemeenschappelijke kosten en een provisie voor de verwarming. Een interessante investering met een onmiddellijk rendement!


Vastgoed De Koster bv

Vragen over deze eigendom ref: 7256870
contact

Details van het pand

Financieel

Prijs
€ 175.000,00
Beschikbaarheid
Mits inachtneming huurders
Gemeenschappelijke kosten
€ 145,00/maand

Ligging

Buurt
Woonkern
School nabij
Ja
Winkels nabij
Ja
Openbaar vervoer nabij
Ja
Autosnelweg nabij
Ja
Mobiscore
9,00

Gebouw

Bewoonbare oppervlakte
87,00 m²
Aantal gevels
2
Bouwjaar
1972
Renovatiejaar
2022
Verdiep
5
Aantal verdiepingen
6
Netto oppervlakte
87,00 m²
Voorgevel
Metselwerk
Oriëntatie voorgevel
Zuid

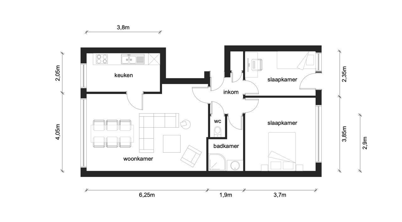
Indeling

Woonkamer
28,00 m²
Keuken
8,00 m², gedeeltelijk geïnstalleerd
Berging
Ja
Nachthal
3,50 m²
Slaapkamer 1
14,00 m²
Slaapkamer 2
8,50 m²
Badkamer 1
4,50 m²
Toiletten
1
Terras
3,50 m²
Kelder
Ja

Comfort

Parlofoon
Ja
Rookdetector
Ja
Lift
Ja
Gepantserde deur
Ja
Zwembad
Nee

Energie

EPC
361 kWh/m²/jaar
EPC unieke code
20220728-0002647684-RES-1
Dubbele beglazing
Ja, thermische onderbreking
Ramen
Hout of pvc
Elektriciteitskeuring
Ja, conform
Verwarming
Collectief

Technieken

Elektriciteit
Ja
Telefoonbekabeling
Ja
Kabeltelevisie
Ja
Riolering
Ja
Gas
Ja
Water
Ja

Stedenbouw

Bestemming
Woongebied
Bouwvergunning
Ja
Verkavelingsvergunning
Niet meegedeeld
Voorkooprecht
Niet meegedeeld
Asbestinventarisattest
Ja
Dagvaarding
Niet meegedeeld
O-peil
Niet gelegen in een overstromingsgevoelig gebied
G-score
A
P-score
C
Kadaster nummer
A 232 a7

Meer info over deze eigendom

Bedankt voor je bericht, we contacteren je zo spoedig mogelijk.
Er was een probleem bij het versturen van het formulier, gelieve opnieuw te proberen.
U moet de algemene voorwaarden aanvaarden om dit bericht te kunnen verzenden
(*) Gelieve de verplichte velden in te vullen.